Projekt techniczny stanowi z pewnością kluczowy element każdej inwestycji budowlanej. To właśnie on często decyduje o sukcesie lub porażce przedsięwzięcia. Opracowanie dobrego projektu znacząco ułatwia realizację budowy, a jego brak wiąże się z wieloma trudnościami oraz dużym ryzykiem dotyczącym bezpieczeństwa i zgodności z obowiązującymi normami. W moim doświadczeniu, dobry projekt techniczny to nie tylko szczegółowe i przemyślane wytyczne, ale również konkretne rozwiązania, które wpływają na przebieg prac na placu budowy. Takie podejście obejmuje zarówno aspekty konstrukcyjne, jak i techniczne, co z kolei umożliwia płynne i efektywne przeprowadzenie wszystkich etapów budowlanych.
Znaczenie projektu technicznego w budownictwie
Bez wątpienia jednym z kluczowych zadań projektu technicznego pozostaje zapewnienie zgodności z przepisami budowlanymi oraz normami bezpieczeństwa. Dzięki precyzyjnym rysunkom technicznym i szczegółowym obliczeniom konstrukcyjnym, zespół projektowy skutecznie minimalizuje ryzyko błędów, które mogą prowadzić do poważnych katastrof budowlanych. Dodatkowo, projekt techniczny działa jako narzędzie do optymalizacji kosztów budowy. Mądrze przemyślane rozwiązania techniczne pozwalają uniknąć nieprzewidzianych wydatków, co często odgrywa kluczową rolę dla inwestorów.
Również struktura projektu technicznego ma ogromne znaczenie. Właściwie przygotowany projekt powinien zawierać elementy takie jak szczegółowe opisy zastosowanych materiałów, rysunki techniczne, specyfikacje oraz obliczenia konstrukcyjne. Stanowią one nie tylko cenne źródło informacji, ale również pełnią rolę prawną, gdyż projekt musi spełniać wymagania Ustawy Prawo budowlane. Ponadto, coraz bardziej istotne stają się normy charakterystyki energetycznej, które wpływają na zrównoważone budownictwo. Wprowadzenie tych elementów pozwala na skuteczne dbanie o efektywność energetyczną budynku, co jest korzystne zarówno dla środowiska, jak i obniża koszty eksploatacji.
Procedury i wymogi dotyczące projektu technicznego

Przygotowanie projektu technicznego to proces, który wymaga współpracy wielu specjalistów z różnych branż. Ta współpraca znacząco wpływa na jakość końcowego dokumentu. Zespół projektantów, w tym inżynierowie konstrukcyjni, architekci oraz eksperci z zakresu instalacji, wspólnie pracują nad tym, aby każda część projektu była spójna i odpowiadała na potrzeby inwestycji. Jeśli ciekawią cię takie treści to odkryj kluczowe kroki w remoncie łazienki. Dodatkowo, projekt musi przejść szereg weryfikacji oraz zatwierdzeń, co może wydłużyć czas realizacji, ale w dłuższej perspektywie oszczędza to wiele problemów i kosztów. Dlatego, bazując na moim doświadczeniu, zdecydowanie warto zainwestować czas w starannie przygotowany projekt techniczny, ponieważ przynosi on liczne korzyści w późniejszych etapach budowy.
Obowiązkowe składniki projektu technicznego domu
Projekt techniczny domu stanowi kluczowy dokument, który opiera się na fundamentach całego procesu budowlanego. Bez tego dokumentu nie ma możliwości przeprowadzenia sprawnej oraz zgodnej z przepisami budowy. Wśród głównych celów projektu technicznego znajduje się dostarczenie szczegółowych rozwiązań technicznych, które będą służyły wykonawcom jako przewodnik w trakcie realizacji inwestycji. W projekcie uwzględniają różne aspekty, takie jak zastosowane materiały, technologie i obliczenia statyczne, co przekłada się na bezpieczeństwo oraz efektywność budynku. Jeżeli chcesz poczytać więcej, sprawdź, co wybrać dla dłuższej trwałości dachu.
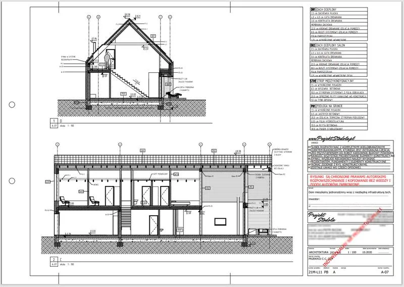
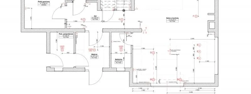
Co zatem powinno koniecznie znaleźć się w projekcie technicznym? Na pierwszy plan wysuwa się opis techniczny, który szczegółowo przedstawia charakterystykę budynku oraz użyte materiały. Rysunki techniczne, takie jak rzuty kondygnacji czy przekroje, również odgrywają kluczową rolę, ponieważ wizualizują całość projektu oraz szczegóły istotne na etapie realizacji. Ponadto, nie można zapominać o obliczeniach technicznych, które zapewniają stabilność oraz bezpieczeństwo konstrukcji. Wreszcie, specyfikacje materiałowe wskazują, jakie dokładnie materiały należy zastosować oraz jakie technologie wdrożyć, co ma ogromne znaczenie dla wykonawców.
Obowiązkowe składniki dokumentacji technicznej

Do istotnych elementów projektu należy również charakterystyka energetyczna budynku, która zyskuje na znaczeniu w kontekście rosnących wymagań dotyczących zrównoważonego budownictwa. Od sierpnia 2026 roku w wielu przypadkach obowiązkowa stanie się także analiza akustyczna, co przyczyni się do zapewnienia odpowiedniego komfortu użytkowania. Dodatkowo, dla obiektów zlokalizowanych na terenach o skomplikowanych warunkach gruntowych wymagana jest przygotowanie dokumentacji geologiczno-inżynierskiej, która określa metody posadowienia budynku. Tego rodzaju szczegółowość ma na celu uniknięcie nieprzewidzianych problemów oraz kosztów w przyszłości, co sprawia, że projekt techniczny staje się nie tylko dokumentem formalnym, ale również narzędziem wspierającym inwestycję w każdym aspekcie.

Obowiązkowe składniki dokumentacji technicznej obejmują:
- charakterystykę energetyczną budynku,
- analizę akustyczną, która wchodzi w życie od sierpnia 2026 roku,
- dokumentację geologiczno-inżynierską dla obiektów na trudnych gruntach.
Podsumowując, projekt techniczny to coś znacznie więcej niż zestaw rysunków czy opisów. Stanowi wszechstronne narzędzie, które łączy w sobie aspekty techniczne, prawne oraz organizacyjne, umożliwiając płynny i bezpieczny proces budowlany. Dlatego tak istotne jest, aby każdy projektant dokładnie znał wszystkie wymagania oraz obowiązki związane z realizacją projektu, co pozwoli uniknąć niepotrzebnych komplikacji oraz zapewni sukces całej inwestycji.
Rola projektanta w tworzeniu dokumentacji technicznej
Rola projektanta w procesie tworzenia dokumentacji technicznej odgrywa niezwykle istotną funkcję. To właśnie on, dzięki odpowiednim uprawnieniom oraz wiedzy, przekształca pomysły w konkretne rozwiązania, które spełniają przepisy prawa budowlanego. Projektant tworzy projekt techniczny, stanowiący fundament dla każdego przedsięwzięcia budowlanego. Jego zadanie obejmuje nie tylko dokładne opisanie szczegółowych rozwiązań konstrukcyjnych, ale także zapewnienie bezpieczeństwa i efektywności projektu. Kluczowe elementy, takie jak odpowiednie obliczenia, rysunki techniczne oraz specyfikacje materiałowe, muszą być jasne i precyzyjne, co ma na celu zminimalizowanie ryzyka błędów na placu budowy.
Tworzenie dokumentacji technicznej wymaga współpracy wielu specjalistów
Warto również podkreślić, że projektant nie pracuje w izolacji. Cały proces tworzenia dokumentacji technicznej wymaga bliskiej współpracy z różnymi specjalistami, w tym inżynierami konstrukcyjnymi, specjalistami od instalacji oraz geologami. Tylko wspólne działania tych ekspertów mogą zapewnić, że wszystkie aspekty projektu zostaną odpowiednio uwzględnione i zharmonizowane. Projektant koordynuje te prace, dbając o to, aby wyniki analiz i obliczeń harmonizowały z ogólną koncepcją budynku. W ten sposób powstaje kompleksowy dokument, który nie tylko spełnia wymagania prawne, ale również wpisuje się w oczekiwania inwestora.
Dodatkowo projektant powinien na bieżąco śledzić zmiany w przepisach oraz nowinki technologiczne, co czyni go jeszcze bardziej wartościowym ogniwem w całym procesie. Jego rola zyskuje na znaczeniu, szczególnie w kontekście wprowadzanych zmian, takich jak obowiązkowa analiza akustyczna czy wymogi dotyczące efektywności energetycznej budynków. Odpowiedzialność projektanta nie kończy się na dostarczeniu gotowego projektu; musi on również wspierać inwestora i wykonawcę w trakcie realizacji inwestycji, co czyni go kluczowym partnerem w procesie budowlanym.
Bez projektanta nie ma mowy o solidnej dokumentacji
Niezwykle istotne jest, aby pamiętać, że jakość, którą zapewnia projektant, ma kluczowe znaczenie dla sukcesu inwestycji. Dobrze przygotowana dokumentacja techniczna wpływa na bezpieczeństwo budowy, zgodność z normami oraz ograniczenie potencjalnych kosztów związanych z błędami wykonawczymi. Nieprzemyślane rozwiązania mogą prowadzić do opóźnień oraz dodatkowych wydatków, co dla wielu inwestorów staje się ogromnym wyzwaniem. Dlatego tak istotne jest, aby projekt techniczny realizował kompetentny projektant, który potrafi zrozumieć wizję inwestora i przekuć ją na realne, funkcjonalne rozwiązania budowlane. W końcu solidna dokumentacja stanowi klucz do każdej udanej inwestycji budowlanej.
Nowe przepisy dotyczące projektów technicznych w 2026 roku
W 2026 roku projekt techniczny przybierze nowe wymiary i znaczenie, przekształcając się nie tylko w formalność, lecz także w kluczowy element każdego procesu inwestycyjnego. W tej nowej rzeczywistości projektanci będą musieli dostosować swoje prace do rygorystycznych przepisów prawnych oraz spełnić określone wymogi techniczne. Te zmiany wymuszają na specjalistach aktualizację wiedzy, a ponadto dostosowanie narzędzi do nowych standardów, co już teraz powinno znaleźć się na czołowej liście ich priorytetów. Bez wątpienia zaobserwujemy wzrost znaczenia cyfrowych archiwizacji dokumentacji, jak również bardziej przejrzystych oraz ustandaryzowanych zasad prezentacji danych.
Dodatkowo, w trakcie tworzenia projektu technicznego szczególną uwagę przywiąże się do energooszczędności. W niedalekiej przyszłości każdy projekt będzie musiał wskazywać innowacyjne rozwiązania, które mają na celu minimalizację zużycia energii. To rozwiązanie nie tylko odpowiada na rosnące normy związane z ochroną środowiska, lecz także stwarza realną szansę na obniżenie kosztów eksploatacyjnych budynków. Zgodnie z nowymi przepisami pojawi się możliwość projektowania przyjaznych dla środowiska obiektów, które łączą komfort użytkowników z odpowiedzialnością ekologiczną.
Nowe regulacje wpłyną na jakość i bezpieczeństwo projektów technicznych
Wśród kluczowych elementów nowych przepisów znajdzie się obowiązkowa analiza akustyczna, co niewątpliwie wpłynie na poprawę jakości życia użytkowników budynków. Dzięki temu nie tylko zminimalizuje się hałas z zewnątrz, ale także poprawi akustykę wewnętrzną, co jest niezwykle istotne, szczególnie w budynkach mieszkalnych oraz użyteczności publicznej. Wprowadzenie takich standardów zmusi projektantów do jeszcze większego skupienia się na detalach, dotyczących komfortu oraz współczesnych wymagań architektonicznych, co niewątpliwie działa na rzecz bardziej zrównoważonego rozwoju budownictwa.
- Obowiązkowa analiza akustyczna dotyczy zarówno budynków mieszkalnych, jak i użyteczności publicznej.
- Przyjęcie nowych standardów wpłynie na jakość życia użytkowników budynków.
- Wymogi akustyczne zmotywują projektantów do większej dbałości o komfort akustyczny.
- Analiza akustyczna przyczyni się do zrównoważonego rozwoju budownictwa.
Nie można zignorować faktu, że te zmiany stanowią także wyzwanie dla projektantów, którzy będą musieli nieustannie podnosić swoje kwalifikacje. Konieczność dostosowania się do nowych regulacji wiąże się z dodatkowymi obowiązkami, ale jednocześnie otwiera drzwi do rozwoju oraz wprowadzania innowacyjnych rozwiązań w ich pracy. Dzięki tym możliwościom, projekty stają się nie tylko zgodne z przepisami, ale również nowoczesne i funkcjonalne. W obliczu nadchodzących zmian, można być pewnym, że przyszłość budownictwa niosą ze sobą zarówno wyzwania, jak i niespotykane wcześniej możliwości.
| Element | Opis |
|---|---|
| Nowe wymiary projektu technicznego | Projekt techniczny stanie się kluczowym elementem procesu inwestycyjnego. |
| Rygorystyczne przepisy prawne | Projektanci będą musieli dostosować swoje prace do nowych wymogów technicznych. |
| Aktualizacja wiedzy | Specjaliści muszą podnosić swoje kwalifikacje, aby sprostać nowym wymaganiom. |
| Cyfrowa archiwizacja dokumentacji | Wzrost znaczenia przejrzystych i ustandaryzowanych zasad prezentacji danych. |
| Energooszczędność | Projekty muszą wskazywać innowacyjne rozwiązania minimalizujące zużycie energii. |
| Obowiązkowa analiza akustyczna | Wpłynie na poprawę jakości życia oraz akustyki w budynkach mieszkalnych i użyteczności publicznej. |
| Wzrost komfortu użytkowników | Nowe regulacje zmotywują projektantów do większej dbałości o komfort akustyczny. |
| Zrównoważony rozwój budownictwa | Analiza akustyczna przyczyni się do bardziej zrównoważonego rozwoju budownictwa. |
Źródła:
- https://uprawnienia-budowlane.com/projekt-techniczny-czym-jest-i-co-zawiera/
- https://on-arch.pl/co-zawiera-projekt-techniczny/
- https://cubicform.pl/projekt-techniczny-co-zawiera-i-kiedy-jest-wymagany/
Pytania i odpowiedzi
Dlaczego projekt techniczny jest kluczowy dla inwestycji budowlanej?
Projekt techniczny stanowi fundament każdej inwestycji budowlanej, decydując o jej sukcesie lub porażce. Odpowiednio przygotowany projekt ułatwia realizację budowy, minimalizując ryzyko błędów oraz zapewniając zgodność z przepisami budowlanymi.
Jakie składniki powinny znaleźć się w projekcie technicznym domu?
W projekcie technicznym powinny znaleźć się szczegółowe opisy zastosowanych materiałów, rysunki techniczne, obliczenia konstrukcyjne oraz specyfikacje materiałowe. Te elementy nie tylko dokładnie przedstawiają projekt, ale także spełniają wymogi prawne określone w Ustawie Prawo budowlane.
Jakie są nowe regulacje dotyczące projektów technicznych, które wejdą w życie w 2026 roku?
Od 2026 roku projektanci będą musieli dostosować swoje prace do rygorystycznych przepisów prawnych, w tym obowiązkowej analizy akustycznej i wymogów dotyczących energooszczędności. Te zmiany będą miały na celu poprawę komfortu użytkowników oraz zrównoważony rozwój budownictwa.
Jakie są korzyści z udziału projektanta w procesie tworzenia dokumentacji technicznej?
Projektant, dzięki współpracy z innymi specjalistami, zapewnia, że wszystkie aspekty projektu są odpowiednio uwzględnione i zharmonizowane. Jego rola jest kluczowa dla bezpieczeństwa, zgodności z normami oraz ograniczenia potencjalnych kosztów związanych z błędami wykonawczymi.
Jakie znaczenie ma charakterystyka energetyczna budynku w kontekście projektu technicznego?
Charakterystyka energetyczna budynku zyskuje na znaczeniu z uwagi na rosnące wymogi dotyczące efektywności energetycznej i zrównoważonego budownictwa. Wprowadzenie innowacyjnych rozwiązań w projektach ma na celu minimalizację zużycia energii, co korzystnie wpływa na koszty eksploatacji budynku oraz ochronę środowiska.










